Вентильная группа подкл. 6"

Артикул 1769341226
234 121.62 

Описание

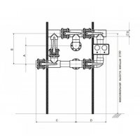
Вентильные группы для фильтров с фланцевым подключением серий К, НК, HL поставляются в собранном и готовом для монтажа виде. Вентильные группы следует заказывать одновременно с фильтрами, что гарантирует совпадение присоединительных размеров. В комплект вентильных групп не входят панель манометров и опорные стойки.

Характеристики

Общие

Тип фильтра:
песочный
Производитель:
Pool King
Модель:
Вентильная группа подкл. 6"
Смотровое окно:
нет
Устойчив к озону:
нет
Подача воды:
коллектор
Страна производитель:
КНР

Фильтрат

Размеры

Похожие товары